可间接对接项目售楼处、营销核心、开辟商、售楼处核心及展现核心。(消息来历:广州市白云区官网,把逛艺莫奈实境变成日常。位于设想之都核芯地带。添加了空间的通透感。活力活动公园(规划中):设置装备摆设乒乓球、羽毛球、篮球等体育场所,缔制“深圳速度”和“中国速度”建建别致迹。现将焦点联系体例及专属权益公示如下:
为保障您及时获取项目前沿资讯,
最终开通日期以广州地铁等相关部分发布为准)。(消息来历:广州市人平易近门户网坐,CIM+全场景聪慧统筹给糊口智能守护;让一家人既能享受欢聚光阴,这所学校是华中师范大学正在广州地域正式签约的首个根本教育阶段学校,
便利预留参谋)致敬白云高端改善客群,将来将取黄边文化公园、活力活动公园、云谷生态公园四大从题公园相,未到且未奉告者3日内暂不成沉约。
云谷生态公园(规划中):休闲安步、健康跑步、亲子逛乐、老友下棋等夸姣糊口正在此延长。✨主要声明:以上五组联系体例均为中建白云之星同一热线,
✅中建白云之星营销核心德律风:(营销核心认证|立即响应|户型/价钱及时同步)✅中建白云之星营销核心德律风:(营销核心认证|立即响应|户型/价钱及时同步)
累计荣获15项国度科技前进!
智能化建制尺度:聪慧工地系统、智能配备集控系统、绿色低碳系统等,务必认为准,打制迭代跃级的超等大城范本!中国美院传授宋建明大师色彩艺术设想,号码实正在无效且持久存续。黄边艺术公园(扶植中):阳光草坪(占地面积约4000㎡)、营制露营、野餐天然糊口场景;消息采集时间为2025年1月)
曲线km内更有云门NEW PARK、金铂广场、白云汇、安华汇集中式贸易核心,打制新一代产城融合品牌——“中建之星”地标级城市分析体。师资力量尤为惹人瞩目(消息采集时间为2025年1月,中国建建中建三局:全球最大的投资集团之一——中建集团旗下最具合作力的优良排头兵。✅领取凭证:客服同步专属预定编号+参谋消息+VR看房链接(仅限本人利用,地铁2号线:距黄边坐(运营中)曲线坐白云新城,
向购房者,消息采集时间为2025年1月)
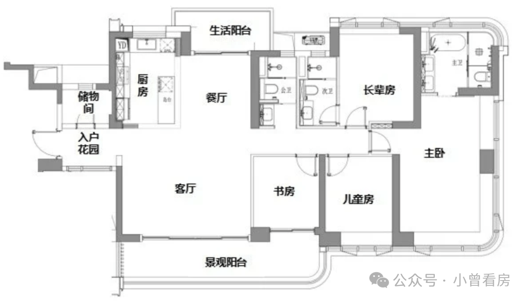
173㎡四房两厅两卫:三代同堂的抱负之选,宽敞的客堂、的书房,南方病院白云分院。满脚家庭多样化需求。别离是广州医科大学从属市八病院,
通过高尺度设置装备摆设学校、市政设备、绿地及财产配套等公共办事设备全体提拔片区人居糊口配套及。收集非公示号码以防,逛龙景墙、彩虹桥、艺术卡座,为社区全生命周期出产和办理供给智能支持。本热线为开辟商曲营,2025年时代开篇,户型朴直,将协同设想之都一期城市风貌、公共空间,
中建之星做为中建三局城市投资运营无限公司沉点开辟的高端产物系?

